Unless otherwise stated all content and images © Perspekt Consulting

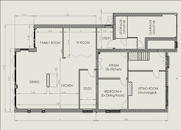
Other Large Extensions
Ground floor extensions to 1960s houses in Kidlington and Carterton, both of which doubled the habitable footprint of the original house.

In Kidlington we challenged the Planners with a 10m x 9m footprint providing a new kitchen, diner/garden room, TV room and study (plus a new master bedroom).

Open-to-roof ceilings create  the luxury of space with feature glulam purlins.

In Carterton a similar footprint accommodates a substantial kitchen/diner/garden room plus an additional bedroom. Sadly, budgets frustrated the open-ceilinged concept.